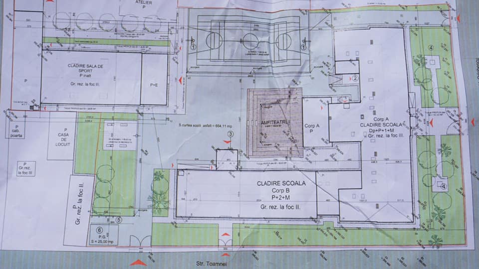
Lucrările de reabilitare și modernizare a Liceului de Muzică ”Tudor Jarda” sunt în plină desfășurare. Un proiect special, de peste 9 milioane de lei. ”Cea mai spectaculoasă locație exterioară a școlii va fi amfiteatrul în aer liber, amplasat lângă corpul A al liceului” a anunțat viceprimarul Cristian Niculae.
Administrația locală a atras fonduri de reabilitare a 7 școli și 2 grădinițe, valoarea acestor proiecte depășind suma de 37 de milioane de euro.
Unul dintre cele mai speciale proiecte este cel legat de reabilitare ași modernizareaa Liceului de Muzică Tudor Jarda. Proiectul în valoare de 9,5 milioane de lei are menirea să schimbe INTEGRAL fața unității școlare, dar să0i aducă și îmbunătățiri.
”Cea mai spectaculoasă locație exterioară a școlii va fi amfiteatrul în aer liber, amplasat lângă corpul A al liceului. În interior, cele 19 spații de studiu individual și repetiții localizate în mansarda corpului reabilitat, vor crea condiții excelente de pregătire viitorilor artiști bistrițeni. Ne asigurăm în permanență că lucrările și materialele folosite sunt de cea mai bună calitate, în luna august se vor finaliza lucrările la corpul B, urmând să fie demarate lucrările de reabilitare și modernizare a corpului A, clădire monument istoric” a anunțat viceprimarul Cristian Niculae.
Lucrările ar trebui să fie finalizate până în toamnă, astfel că, dacă se va permite reînceperea anului școlar, elevii acestui liceu vor avea condiții de lucru moderne.
”Educația este importantă pentru Bistrița, este importantă pentru noi! Copiii Bistriței merită cele mai bune condiții de studiu și pregătire. Ei reprezintă viitorul Bistriței!” a concluzionat viceprimarul Cristian Niculae.
























